49 East Rd, Hawley, MA 01339
Toggle Navigation
Images
Videos
Floor Plans
Map
49 East Rd
Hawley, MA 01339
Scroll to Content
Images
Fall
Winter
Interior
Slideshow
Photo Grid
Hide
Previous
Next
Show more
Videos
Unbranded
Sunset Sky
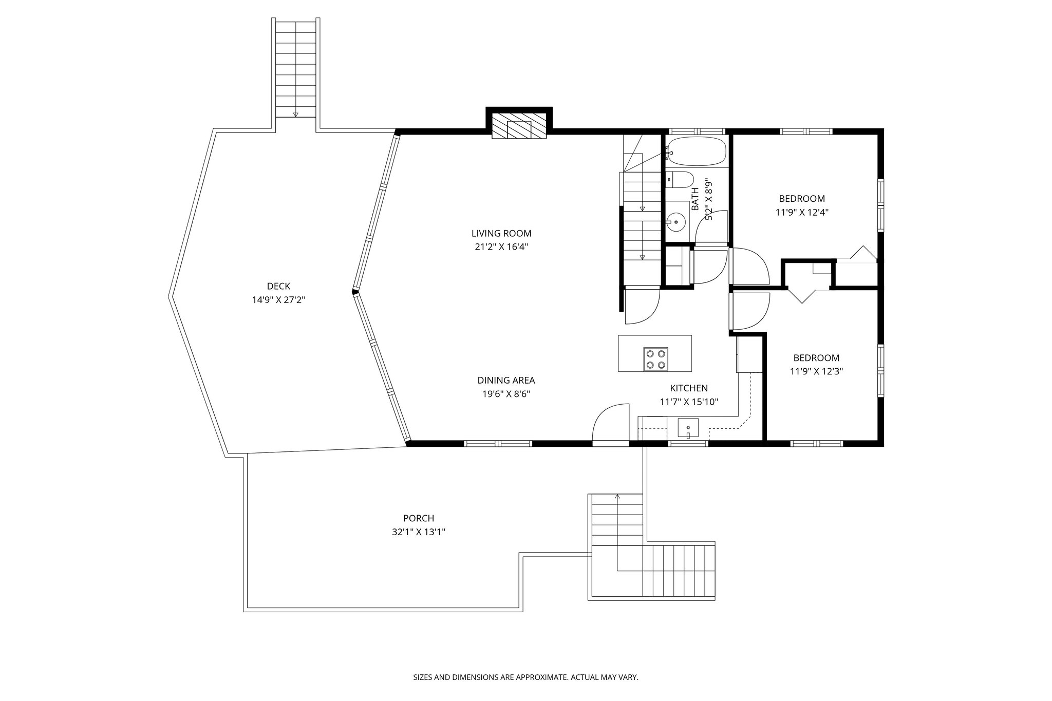
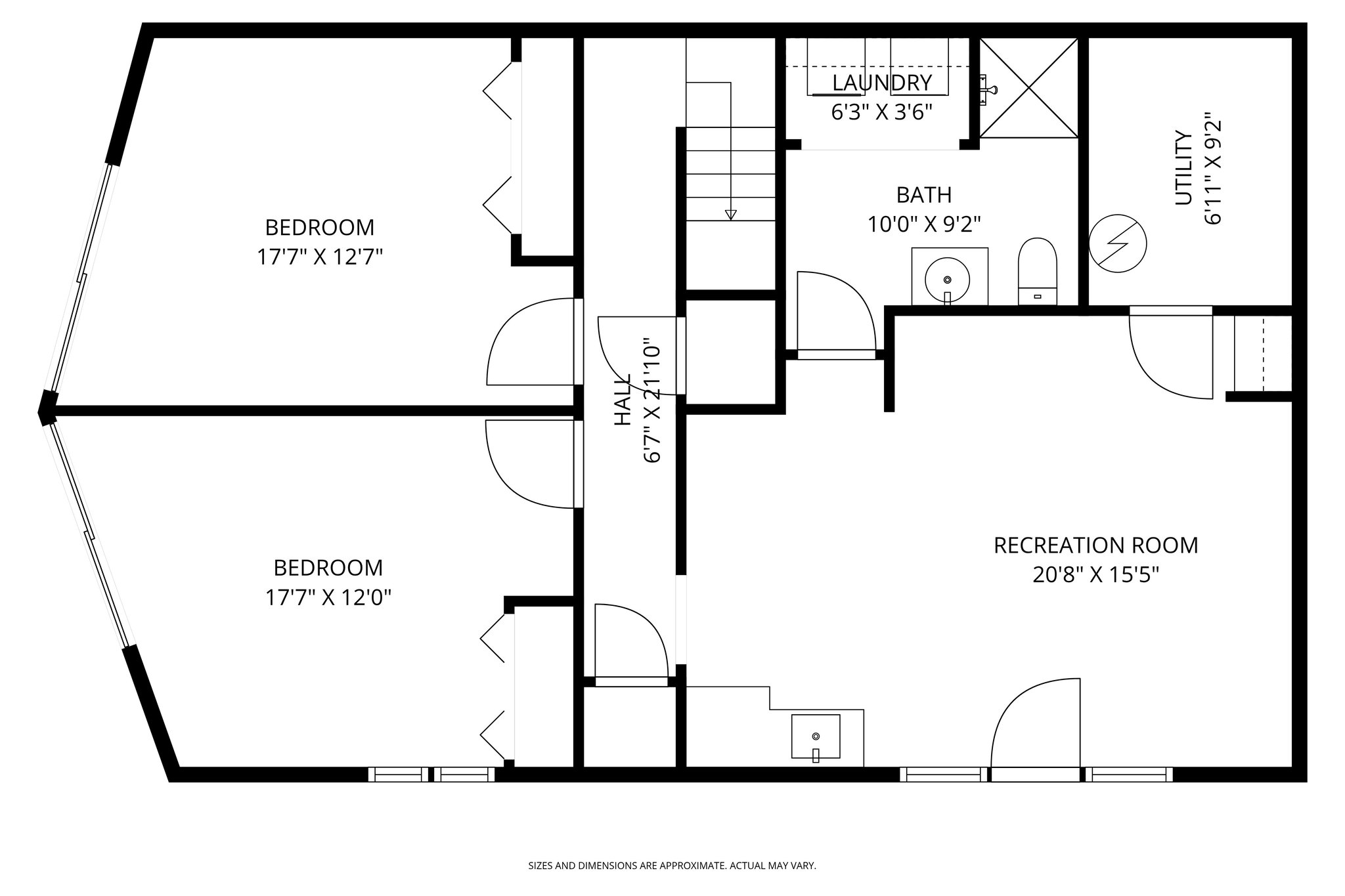
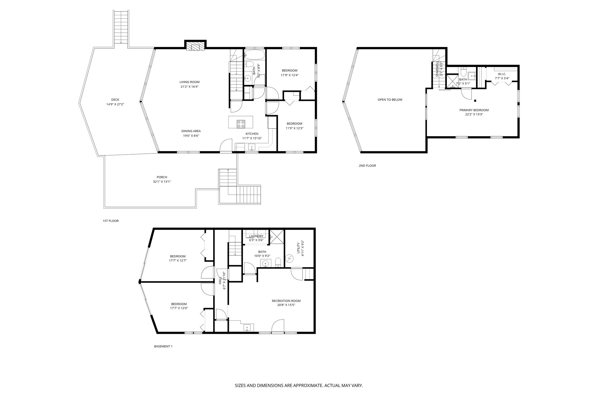
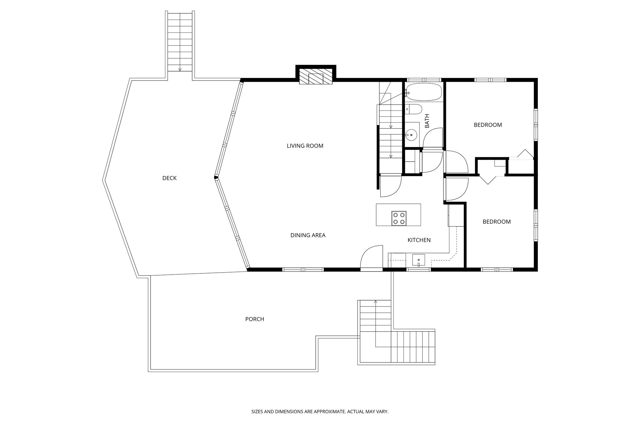
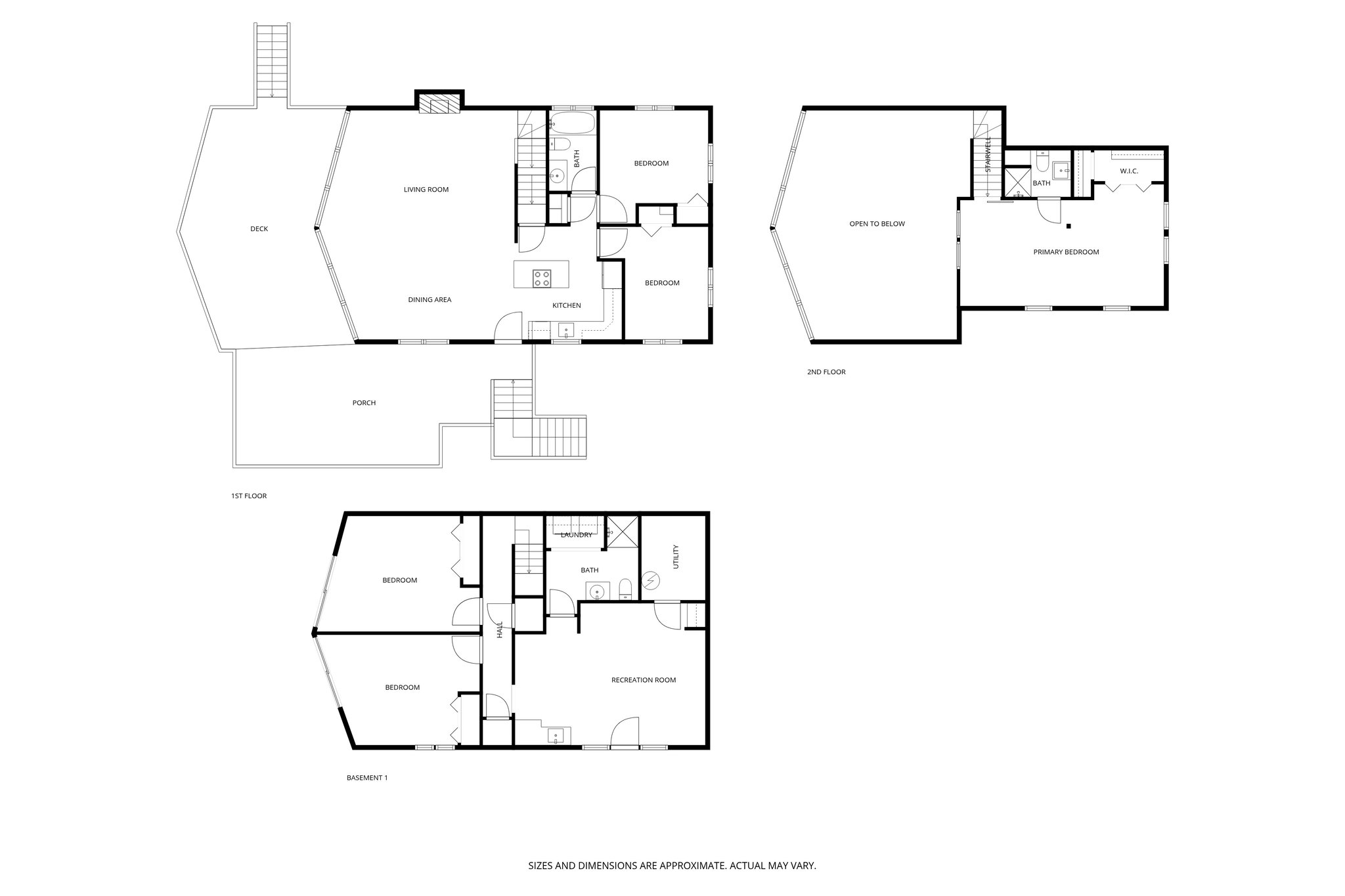
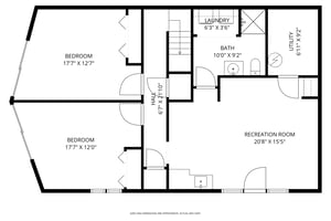
Floor Plans
Slideshow
Photo Grid
Hide
Previous
Next